🔧 本文章最後由 駿暉電器 於 2011-2-12 15:14 編輯
昨晚工地來下貨櫃車,今天下午土木技師工會來店勘察屋內的狀況了~~~
我們等了3年終於要撥雲見日了.....oh~~ya....🔧 本文章最後由 駿暉電器 於 2011-2-12 15:18 編輯
昨晚來工地下貨櫃車,今天下午土木技師工會來店勘察屋內的狀況了~~~
我們等了3年終於要撥雲見日了.....oh~~ya....{:4_131:}
回覆 evalee 的文章
這也是我所希望的,但是又怕粉吵~~~{:4_205:}
不知樹林區民會不會有什麼好康?
另外,貴店現在靠口碑已經夠忙了,隔壁開了農會之後,應該會忙到翻過去吧XD
恭喜恭喜,生意興隆、財源廣進!
🔧 本文章最後由 駿暉電器 於 2011-2-12 15:28 編輯
回覆 洪阿民 的文章
這也是我期待的{:4_82:}
對了照片中的人是你小時候嗎?還是你的小孩呢?
真是可愛呀~~
回覆 洪阿民 的文章
其實我也不知,因為我剛才去問工地主任他給我的回答是這樣.....;P
希望有農會超市,有好的生鮮可以買 {:7_471:}
🔧 本文章最後由 駿暉電器 於 2011-2-12 21:12 編輯
回覆 sugar100 的文章
在我們店面旁邊呀(金莎)
歐耶!
這樣在那邊"出入"就太方便了......{:4_127:}
🔧 本文章最後由 駿暉電器 於 2011-2-14 16:39 編輯
owen 發表於 2011-2-12 21:26 
終於等到了~~
那敬請期待的布條掛了快一年了吧!
你等一年,我等了3年了:'(
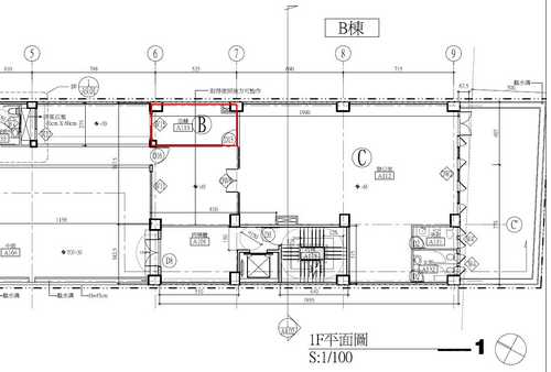
不過剛剛研究了一下樹林農會的建築設計平面圖,看起來1樓的店鋪其實很小,而且空間好像只有作銀行跟辦公室用,2樓跟3樓則似乎是員工宿舍的樣子,地下1樓是停車場,看起來似乎沒有任何可以規劃超市的地方...
唉... 為什麼沒有農會超市進駐呢?真可惜...

🔧 本文章最後由 seanchen 於 2011-2-14 20:30 編輯
寧靜海 發表於 2011-2-14 18:57 
不過剛剛研究了一下樹林農會的建築設計平面圖,看起來1樓的店鋪其實很小,而且空間好像只有作銀行跟辦 ...
如果是三峽農會的超市(有嘛) 就可以買碧螺春嚕
樹林農會來電說確定不會有超市引入,就是純金融部、辦公室跟住宅,有點小失望,但也沒辦法...
寧靜海 發表於 2011-2-24 16:58 
樹林農會來電說確定不會有超市引入,就是純金融部、辦公室跟住宅,有點小失望,但也沒辦法... ...
我有去下載他們的工程圖....的確沒有超市....{:4_161:}
農會能幹嘛{:4_144:} 存錢嘛?!我們已經好多家銀行的卡了,不想要多一張{:4_161:}