愛北大 唯讀圖書館

!!灌水篇!!請大家踴躍發言多灌點水

2010-10-28 17:58 · 241樓
下班囉~晚上繼續來噴口水 {:4_177:}
2010-10-28 18:36 · 242樓
小徐 發表於 2010-10-28 16:40
有1次出電梯要去開車門也會打不開....


偶發現門外面有一旋扭轉之後,裡面按鈕開了也推不動!
2010-10-28 19:39 · 243樓
🔧 本文章最後由 vivian_weiling 於 2010-10-28 19:53 編輯


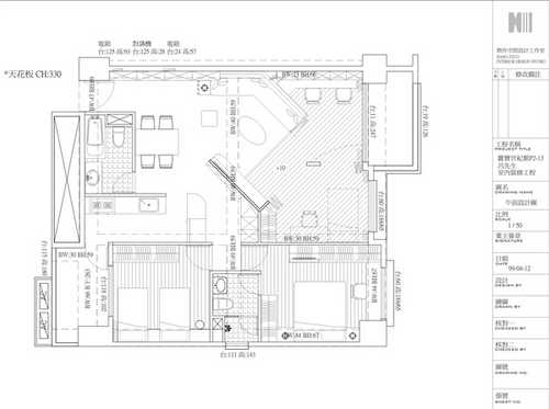
為了配合"灌水"活動,我來發發我家裝潢的開箱文,

經過二個月的溝通協調後

取得三D圖
2010-10-28 19:46 · 244樓
vivian_weiling 發表於 2010-10-28 19:39
為了配合"灌水"活動,我來發發我家裝潢的開箱文,


P2也是40.27坪嗎?
好像跟我家一樣 只是反方向而已
2010-10-28 19:46 · 245樓
vivian_weiling 發表於 2010-10-28 19:39
為了配合"灌水"活動,我來發發我家裝潢的開箱文,


妳又買一戶嗎?要不....3房變4房的設計圖咧!
2010-10-28 19:57 · 246樓
真實照片目前還沒拍,都在下雨,有機會再來拍一張!!
2010-10-28 19:58 · 247樓
好特別的設計喔~{:4_113:}
2010-10-28 20:03 · 248樓
最小空間最大利用,讓空間在視覺中變大,讓空間可以靈活運用,這是我家在設計之初基本原則
2010-10-28 20:05 · 249樓
真是不錯的設計師作品
因該可以上電視了~{:4_113:}
2010-10-28 20:09 · 250樓
我老公最喜歡的是現在的三角飯團桌,他可是找了好久,無意中發現的,他連日月光都去了,逛完一樣也沒買,卻在看"燈"時,發現了我們現在的茶几,可說是冥冥中自有安排呀!!
2010-10-28 20:21 · 251樓
vivian_weiling 發表於 2010-10-28 19:39
為了配合"灌水"活動,我來發發我家裝潢的開箱文,

經過二個月的溝通協調後


真的是非常特別的設計呢,
很充分的空間利用,
三房變四房,果然是真的哩{:4_113:} !
2010-10-28 21:42 · 252樓
回覆 waitai 的文章

P2是46坪的唷,跟我家一樣的格局,差在我家方向跟他相反
2010-10-28 21:47 · 253樓
halloween 發表於 2010-10-28 21:42
回覆 waitai 的文章

P2是46坪的唷,跟我家一樣的格局,差在我家方向跟他相反 ...


是喔 難怪能3房變4房 眉角就在這~{:4_140:}
2010-10-28 21:52 · 254樓
世紀館的鄰居"許銘傑(LA NEW熊 投手)"等等要為國爭光嚕! 他目前正在牛棚熱身了!!
洲際杯棒球賽大家快看唷!! 目前台灣勝日本 8:5
2010-10-28 22:00 · 255樓
誇張~~黑麻麻跟我還沒出現就已經蓋這麼多層樓了喔
2010-10-28 22:06 · 256樓
呵~要灌水衝人氣!!.......那我去把日誌(裝修紀錄)一篇篇搬過來好嗎??
{:4_140:}{:4_140:}{:4_140:}
2010-10-28 22:11 · 257樓
[2010.10.24]由於工作太忙~8月多開工做好了水電空調後~就將"它"擺著~直到現在........
下星期二工班終於要再進場了~藉這機會將裝潢過程紀錄一下吧!!......
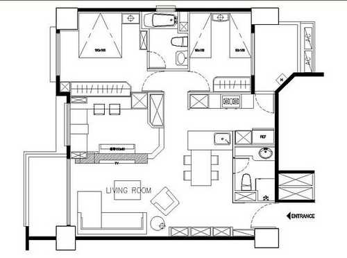
[麗寶世紀館]-P棟


平面配置圖[麗寶世紀館]
2010-10-28 22:19 · 258樓
[2010.10.26]

.......久違了~施工許可證{:4_186:}

...傳說中的神奇背心(穿上它可以隱形.........迷之音)))

.....緩衝式滑軌(抽屜用)

.....緩衝式櫃門鉸鏈(之前案子用剩的自己回收使用......)

.....低甲醛F1等級角料

.....日本麗仕矽酸鈣板

.....梯廳地面夾板保護

看到門口張貼的施工許可證~才驚覺時間已2個月過去了.......

還好當初準備的材料都還安靜的存在著......(雖然蒙上了一層灰)

地面的保護使用3mm夾板+防潮布~雖然成本較高~但卻不會如同白色瓦楞板般~經歷3-4個月的磨擦~在地面上留下一條條的痕跡......(白色瓦楞保護板只適合用於牆面或地面短暫使用)

2010-10-28 22:23 · 259樓
🔧 本文章最後由 kyosun 於 2010-10-28 22:28 編輯


[2010.10.27] 昨晚太累~偷了個懶~今天補一下進度.......^^
.......之前施工到一半的天花板
空調系統選擇的是日立1對4(吊隱式送風機)變頻單冷系統.....(個人認為暖氣方面~還是市售的機種功能較齊全)


為求天花板高度盡量升高~所以樑下天花板之角材一律剖半(抓全室水平)處理......吊隱式送風機下方也保留較大的維修口~方便日後維修清洗.....

......之前已完成的小孩房天花板雛形




頂樓戶特有的前陽台......(牆角那隻礙眼的排水管~一定非想個裝飾方式才行)
2010-10-28 22:27 · 260樓
🔧 本文章最後由 kyosun 於 2010-10-28 22:28 編輯


[2010.10.28]

新作隔間依然使用輕質隔間(規格:8cm鋁架+10mm矽酸鈣板)~發泡水泥灌漿處理

.....過程中遺留下一地的小保麗龍球


公共空間的地磚也由於隔間的變更而需要修補(拆下換新)




今日剛換好的地磚(拋光石英磚)
2010-10-28 22:30 · 261樓

恭喜黑麻麻還有我的高中同學今天入住世紀館喔{:4_134:}
2010-10-28 22:30 · 262樓
照片需重新一張張上傳.........{:4_165:}{:4_165:}
2010-10-28 22:34 · 263樓
kyosun 發表於 2010-10-28 22:27
[2010.10.28]

新作隔間依然使用輕質隔間(規格:8cm鋁架+10mm矽酸鈣板)~發泡水泥灌漿處理


不會吧 作了2個月木作還沒進場喔
8/13-10/31 快到了耶 那你要去展延工期了
2010-10-28 22:37 · 264樓
回覆 waitai 的文章

是ㄚ~還需要去辦展延工期........{:4_186:} {:4_186:}
2010-10-28 22:47 · 265樓
到265樓才來灌水{:4_144:}後知後覺呀
2010-10-28 22:48 · 266樓
kyosun 發表於 2010-10-28 22:37
回覆 waitai 的文章

是ㄚ~還需要去辦展延工期........


很期待你家的開箱文哦~
星期六能不能過去參觀你家的戰場~{:4_140:}
2010-10-28 22:49 · 267樓
kiminawa 發表於 2010-10-28 22:47
到265樓才來灌水後知後覺呀


還不晚啦 才265樓 表示你還有知覺可以爬樓
沒叫你爬1萬樓就要偷笑了 {:4_212:}
2010-10-28 22:50 · 268樓
halloween 發表於 2010-10-28 21:52
世紀館的鄰居"許銘傑(LA NEW熊 投手)"等等要為國爭光嚕! 他目前正在牛棚熱身了!!
洲際杯棒球賽大家快看唷!! ...


中華隊贏了~12:5 YA~{:4_170:}
2010-10-28 22:52 · 269樓
🔧 本文章最後由 waitai 於 2010-10-28 23:02 編輯


北大新住民 發表於 2010-10-28 22:00
誇張~~黑麻麻跟我還沒出現就已經蓋這麼多層樓了喔


是阿 妳門兩個大咖今天都搞失蹤
害我們很寂寞的想著妳門{:4_199:}
2010-10-28 22:52 · 270樓
回覆 waitai 的文章

隨時都歡迎喔.......{:4_151:} {:4_151:}
不過星期6下午還有工作~早上都還OK.....
2010-10-28 22:54 · 271樓
kyosun 發表於 2010-10-28 22:52
回覆 waitai 的文章

隨時都歡迎喔.......


真的嗎?那星期六起個早過去你家 遛達一下
你家是哪棟幾樓?
2010-10-28 22:58 · 272樓
waitai 發表於 2010-10-28 22:54
真的嗎?那星期六起個早過去你家 遛達一下
你家是哪棟幾樓?


P5-19F
要來時通知一下~我好幫您開樓下大門.....{:4_151:}
0933013210 許r
2010-10-28 23:00 · 273樓
kyosun 發表於 2010-10-28 22:58
P5-19F
要來時通知一下~我好幫您開樓下大門.....
0933013210 許r


P棟的我也有一戶啦~
所以我也有卡片可以刷
那我會偷偷殺進去 {:4_87:}
2010-10-28 23:09 · 274樓
忽然忘了明天有小孩同學要來家裡..我要去整理一下了...大家晚安
2010-10-28 23:32 · 275樓
隔了一天,世紀館不愧是家族區第一名! {:4_113:} 爬文粉累人... {:4_93:}
2010-10-28 23:35 · 276樓
🔧 本文章最後由 Joseph 於 2010-10-28 23:38 編輯


waitai大,為避免 Mr. Joseph, Ms Joseph 雌雄同體,

幫我家女王申請新帳號了。不過 ...

因為是見習期間,無法回覆給您,要等 480 分鐘 ... {:4_109:}
2010-10-28 23:37 · 277樓
waitai 發表於 2010-10-28 23:00
P棟的我也有一戶啦~
所以我也有卡片可以刷
那我會偷偷殺進去


呵呵~敲鑼打鼓也行啦.......(只要有施工~門都沒鎖){:4_90:}
2010-10-28 23:47 · 278樓
該不會1下子就要搶1000....10000了吧
2010-10-29 08:07 · 279樓
Joseph 發表於 2010-10-28 23:35
waitai大,為避免 Mr. Joseph, Ms Joseph 雌雄同體,

幫我家女王申請新帳號了。不過 ...


帳號ID是哪一個?我再幫他核准
2010-10-29 08:07 · 280樓
北大新住民 發表於 2010-10-28 23:47
該不會1下子就要搶1000....10000了吧


這邊要爬1000可能還有點困難哦~
所以妳可以慢慢睡~